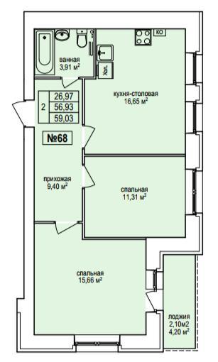
Двухкомнатная квартира 59,03 м2 по ул. Бурмакинская 13а за 6493300 руб.

Двухкомнатная квартира по ул. Бурмакинская, 13а в Ярославле
Цена 6 493 300 р. (110 000 р./м2)
Подать заявку на ипотеку
Район Фрунзенский
Адрес Бурмакинская, 13а
Этаж 5/9
Площадь общая 59,03 м2, жилая 26,99 м2, кухни 16,65 м2
Кол-во комнат Двухкомнатная
Продается 2х-комн. квартира в ЖД Минималист комфорт класса во Фрунзенском районе гор.Ярославля. Квартира располагается на 5 этаже 9-этажного кирпичного дома Застройщик - ООО СЗ СоколСтрой1, сдача дома - I квартал 2026 года, Квартира удобной планировки! - Просторная кухня-столовая позволяет рационально использовать пространство и принимать гостей. - Просторная спальная с выходом на остекленную лоджию -дополнительное место для отдыха. - Большая Прихожая с широкой нишей для возможности установки шкафа-купе и отдельной гардеробной - дополнительные места для хранения ваших вещей - Высота потолков - 2.7 м. Квартира сдается в хорошей предчистовой отделке White box . Полы-ровная стяжка, стены оштукатурены и зашпаклеваны,в санузле установлена сантехника, на кухне установлена раковина, индивидуальный газовый котёл итальянской фирмы Baxi, газовая плита,в квартире разведена электрика,установлена хорошая входная дверь. Дом оборудован грузо-пассажирским лифтом. Парковка автомобилей - наземная. Обеспечение безопасности: видеонаблюдение. Жилой Дом Минималист - это новый проект комфорт класса от Строительного Дома MENGEL. Преимущества: - Дом полностью из керамического кирпича - хорошая -шумо и теплоизоляция. - Индивидуальное газовое отопление. - всегда горячая вода и комфортная температура в вашей квартире, низкие коммунальные платежи! - Эргономичные планировочные решения. - В подъездах на первом этаже предусмотрены колясочные/велосипедные. - Сквозные подъезды. - Удобное уборные на 1 этаже, где можно помыть лапы собакам после прогулки. - Во дворе детская и спортивная площадка. - Детский сад и школа в трех минутах ходьбы, школа в пяти минутах ходьбы. - Рядом расположены торговые и спортивные центры,магазины и аптеки. - Остановка общественного транспорта в пяти-семи минутах ходьбы - Возможен вариант покупки с использованием ипотечных средств, - Возможна беспроцентная рассрочка, - Возможна покупка с использованием материнского капитала, - Военная ипотека. Позвоните и узнайте условия покупки прямо сейчас!
Описание дома
Этажность дома 9
Объявление № 23274511
Дата подачи:
4 октября 2025 г. 2:29
Дата обновления:
22 октября 2025 г. 1:41
Просмотров 9 Хотите продать быстрее?

Продавец
Елена
Показать номер телефона
Пожаловаться
Комментарии:
Добавить